Codice: 10582
Città: TORINO
Zona: Crocetta
Contratto: VENDITA
Tipologia: Appartamento
Classe Energetica: F
Superficie: 157 mq
Piano: -2
Vani: 5
Bagni: 2
Ascensore: SI
Riscaldamento: Nd

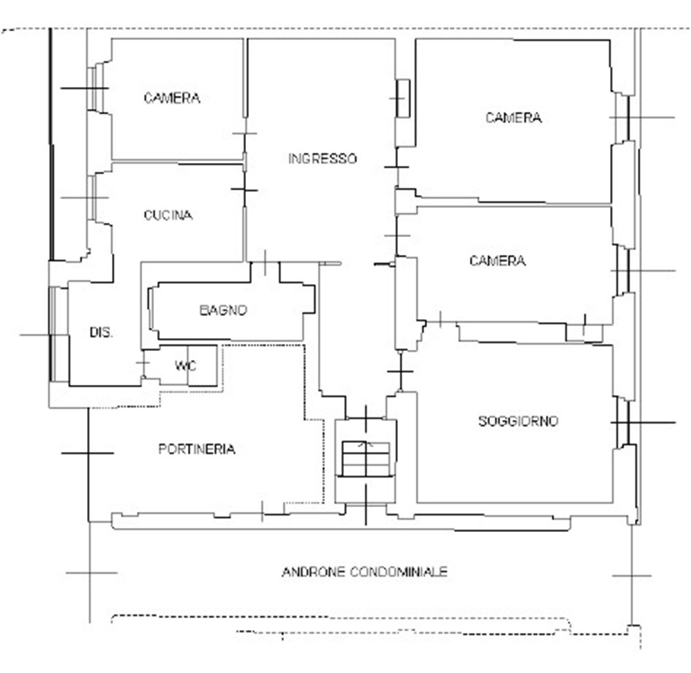
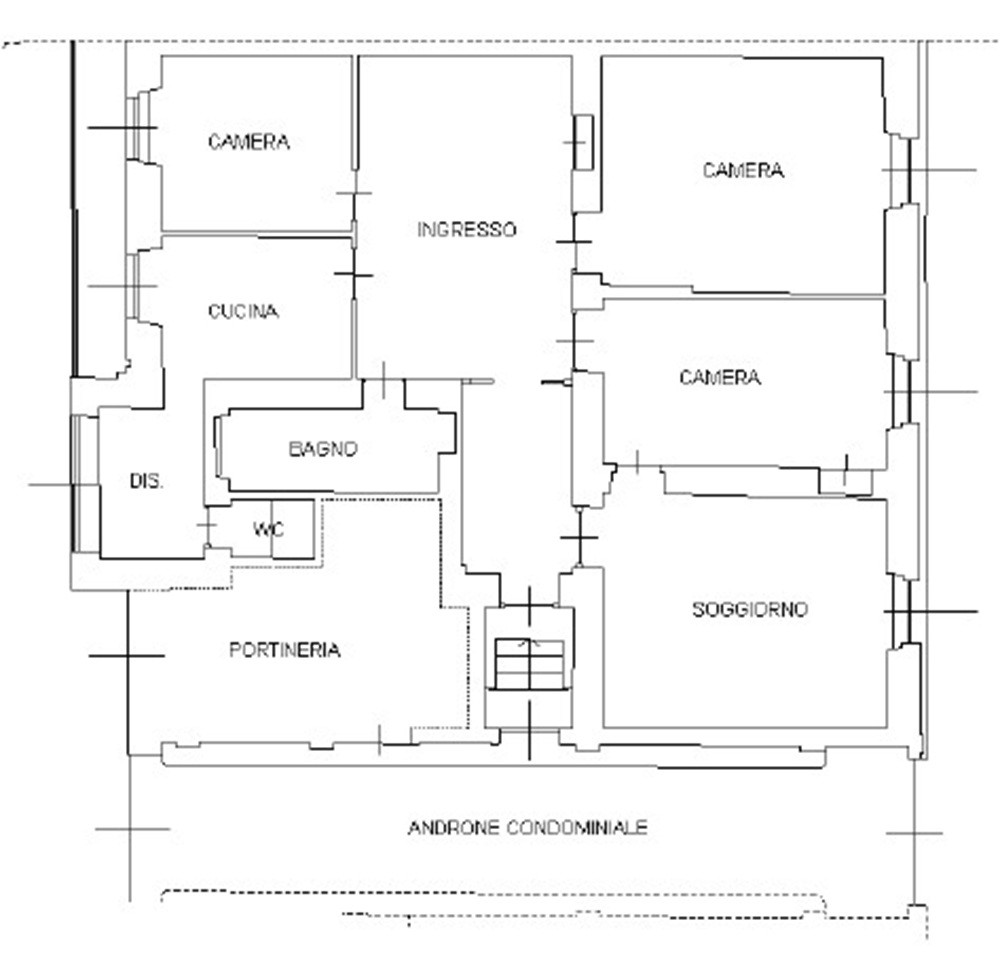
Descrizione: TORINO nella prestigiosa zona Crocetta in via Lamarmora si vende un appartamento di grandi dimensioni che si distingue per la sua eleganza e la sua posizione strategica. Situato in uno stabile d'epoca dalle caratteristiche signorili l'immobile e' posto al piano rialzato con accesso indipendente. L'alloggio si compone di un ampio ingresso, un saloncino spazioso, tre camere, una cucina, un disimpegno e doppi servizi, un balcone con affaccio sul cortile. Completa l'offerta una grande cantina e, su richiesta, la possibilita' di acquistare un comodo garage posto nel cortile condominiale. Lo stabile e' stato recentemente oggetto di importanti lavori di manutenzione, tra cui il rifacimento del tetto, la tinteggiatura della facciata, dell'androne e delle scale. Questi interventi hanno non solo migliorato l'aspetto estetico dell'edificio ma anche aumentato la sua efficienza energetica. È presente anche il servizio di portierato, per una maggiore comodita' e sicurezza. La proposta e' una vera occasione per chi cerca un immobile di valore e prestigio in una delle zone eleganti di Torino. Per le caratteristiche l'immobile puo' essere interessante anche per l'utilizzo come ufficio o studio.


Prezzo: € 327.000,00







 
 
savant ros
 
CODICE
VENDITA / AFFITTO
TIPOLOGIA
REGIONE
PROVINCIA
CITTA'
PREZZO
Min.  
Max. 
 
savant ros

REA TO 1018360 • ex Ruolo Mediatori CCIAA TO 925-1979 • Ruolo Periti Esperti CCIAA TO 0309 • P. IVA 09015910012
Cell. +39 338.1886612 • E-mail: info@savantros.it

Leggi l’informativa sulla PrivacyRealizzazione siti web by PRODOMUS SRL